Sportplatz Siegfriedstraße
Sportplatzgebäude Siegfriedstraße, Berlin-Lichtenberg
VOF-Verfahren mit Stegreifentwürfen
Neubau eines Sportfunktionsgebäudes auf dem Standort des kriegszerstörten Vorgängergebäudes der Berliner Verkehrsbetriebe (BVB-Stadion).
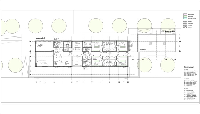
Hauptgebäude mit Wasch-, Dusch- und Umkleideräume für Sportler und Personal, einem Fitnessraum sowie einem MZ-Bereich mit Küche.
Nebengebäude mit Lagerräumen für Vereinsmaterial und WC-Anlagen für Besucher.
Zentrale Eingangshalle mit Zugang zu den Funktionsräumen und zum MZ-Saal sowie zur „Loggia“ als Sitz-, Warte- und Zuschauerbereich für das vorgelagerte Hauptsportfeld.
Bauherr: Bezirksamt Lichtenberger / Hochbauamt
Bauzeit: 2006 – 2009 / LP 2 – 7
HNF 820 m² , BGF 1.380 m² , BRI 5.400 m³
Kosten KG 2-7: 3,2 Mio. €














